12 ДО

Чертеж изделия:
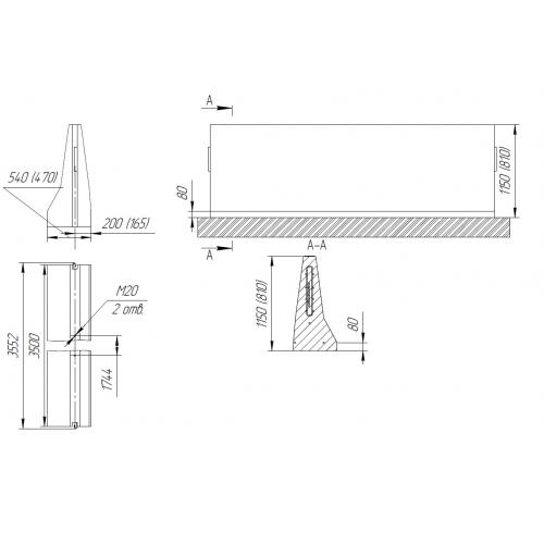
Характеристики изделия:
ПараметрЗначение
длина3552 мм
ширина540 мм
высота1150 мм
масса4000 кг
нормативный документТУ 5899-002-61548960-2010

12 ДО  Блоки парапетного одностороннего стационарного ограждения по ТУ 5899-002-61548960-2010.