Б 15

Чертеж изделия:
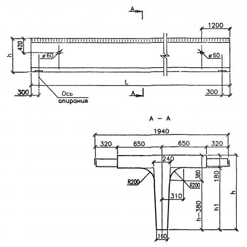
Характеристики изделия:
ПараметрЗначение
длина15000 мм
ширина1940 мм
высота930 мм
вес15100 кг
серияТУ 5851-008-01388383-2002

Б 15 Балки пролетного строения по ТУ 5851-008-01388383-2002.