П-6
Характеристики изделия:
| Параметр | Значение |
|---|---|
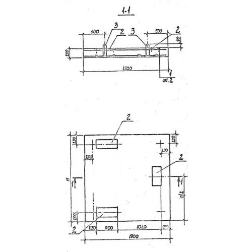
| длина | 1900 мм |
| ширина | 3200 мм |
| высота | 200 мм |
| вес | 3250 кг |
| серия | ТП 901-1-60.86 |
Цена:
Рассчитать стоимостьП-6 Плиты для затопленных водоприемников по проекту ТП 901-1-60.86.
| Параметр | Значение |
|---|---|
| длина | 1900 мм |
| ширина | 3200 мм |
| высота | 200 мм |
| вес | 3250 кг |
| серия | ТП 901-1-60.86 |
П-6 Плиты для затопленных водоприемников по проекту ТП 901-1-60.86.
