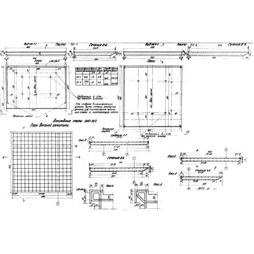
ПС 1

Чертеж изделия:
Характеристики изделия:
ПараметрЗначение
длина3060 мм
ширина2250 мм
высота210 мм
масса3300 кг
нормативный документТП 501-166

ПС 1 Плиты по Типовому проекту ТП 501-166.