А 29

Чертеж изделия:
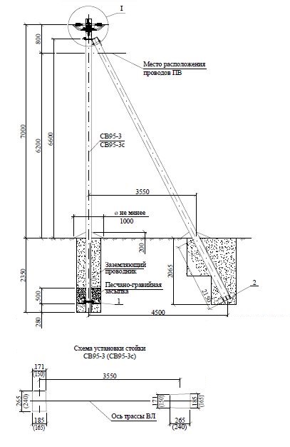
Характеристики изделия:
ПараметрЗначение
длина9350 мм
ширина185 мм
высота265 мм
масса900 кг
нормативный документШифр 26.0085

А 29  Анкерные (концевые) одноцепные опоры Шифр 26.0085