КК 96
Характеристики изделия:
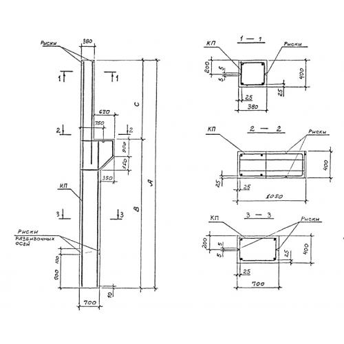
| Параметр | Значение |
|---|---|
| длина | 10650 мм |
| ширина | 400 мм |
| высота | 1050 мм |
| вес | 6700 кг |
| Шифр | 2021-164.1 |
Цена:
Рассчитать стоимостьКК 96 Колонны по Шифру 2021-164.1.
| Параметр | Значение |
|---|---|
| длина | 10650 мм |
| ширина | 400 мм |
| высота | 1050 мм |
| вес | 6700 кг |
| Шифр | 2021-164.1 |
КК 96 Колонны по Шифру 2021-164.1.
