ПСЛ 20

Чертеж изделия:
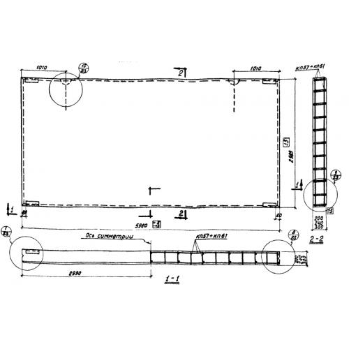
Характеристики изделия:
ПараметрЗначение
длина5980 мм
ширина200 мм
высота2980 мм
масса5200 кг
нормативный документСерия СТ 02-33

ПСЛ 20 Панели стеновые наружные из легкого бетона по Серии СТ 02-33.