ПК

Чертеж изделия:
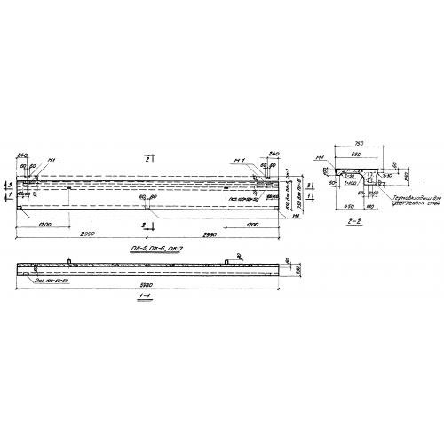
Характеристики изделия:
ПараметрЗначение
длина5980 мм
ширина650 мм
высота250 мм
вес1175 кг
серияСТ 02-12/61

ПК Плиты карнизные по серии СТ 02-12/61.