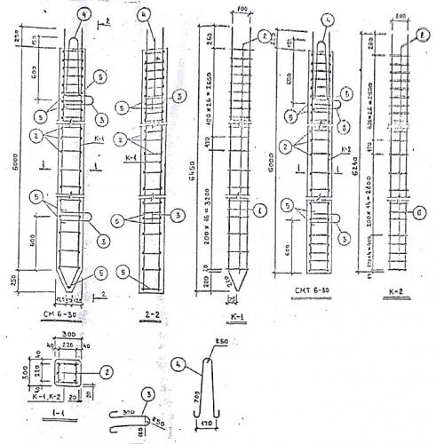
СМТ 6-30
Характеристики изделия:
| Параметр | Значение |
|---|---|
| длина | 6250 мм |
| ширина | 300 мм |
| высота | 300 мм |
| вес | 1350 кг |
| серия | РМ 2-77 |
Цена:
Рассчитать стоимостьСМТ 6-30 Сваи по серии РМ 2-77.
| Параметр | Значение |
|---|---|
| длина | 6250 мм |
| ширина | 300 мм |
| высота | 300 мм |
| вес | 1350 кг |
| серия | РМ 2-77 |
СМТ 6-30 Сваи по серии РМ 2-77.
