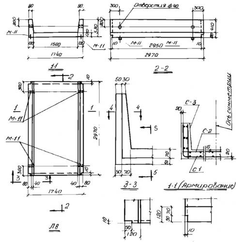
Л 8 лотки

Чертеж изделия:
Характеристики изделия:
ПараметрЗначение
длина2970 мм
ширина1740 мм
высота530 мм
масса2200 кг
нормативный документСерия ИС 01-04

Л 8  Железобетонные лотки  по Серии ИС 01-04.