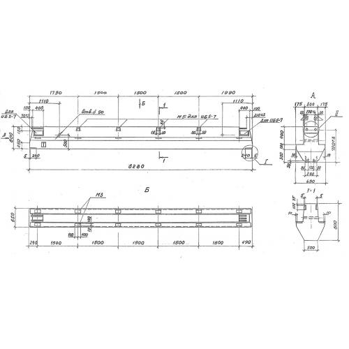
ИБ 5 ригели с полками для опирания плит
Характеристики изделия:
| Параметр | Значение |
|---|---|
| длина | 8280 мм |
| ширина | 650 мм |
| высота | 800 мм |
| масса | 6730 кг |
| нормативный документ | Серия ИИ 23-2/70 |
Цена:
Рассчитать стоимостьИБ 5 Ригель для опирани плит по Серии ИИ 23-2/70.
