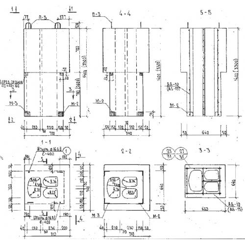
ВШ-3 вентшахты

Чертеж изделия:
Характеристики изделия:
ПараметрЗначение
длина710 мм
ширина740 мм
высота1400 мм
масса576 кг
нормативный документСерия Б1.134.1-7

ВШ-3 Армированные вентиляционные шахты из бетона по Серии Б1.134.1-7.