Л 7

Чертеж изделия:
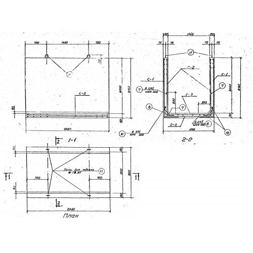
Характеристики изделия:
ПараметрЗначение
длина2980 мм
ширина1800 мм
высота2150 мм
масса6500 кг
нормативный документСерия 4.902-3

Л 7    Лотки по Серии 4.902-3.