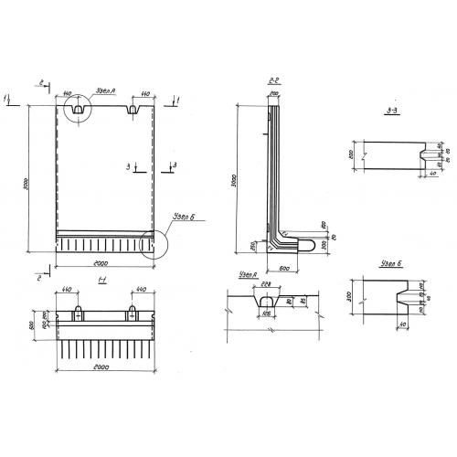
Г 30.20

Чертеж изделия:
Характеристики изделия:
ПараметрЗначение
длина2000 мм
ширина940 мм
высота3000 мм
вес3620 кг
серия3.820.1-39

Г 30.20 Г-образные конструкции многоцелевого нзначения по серии 3.820.1-39.