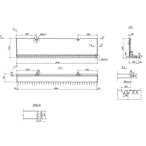
Г 10.60

Чертеж изделия:
Характеристики изделия:
ПараметрЗначение
длина6000 мм
ширина630 мм
высота1000 мм
вес1900 кг
серия3.820.1-39

Г 10.60 Г-образные конструкции многоцелевого нзначения по серии 3.820.1-39.