СБ 20-20

Чертеж изделия:
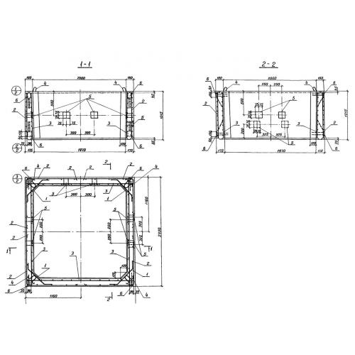
Характеристики изделия:
ПараметрЗначение
длина1970 мм
ширина2320 мм
высота1015 мм
масса3700 кг
нормативный документСерия 3.820-15

СБ 20-20 Секции башни по Серии 3.820-15.