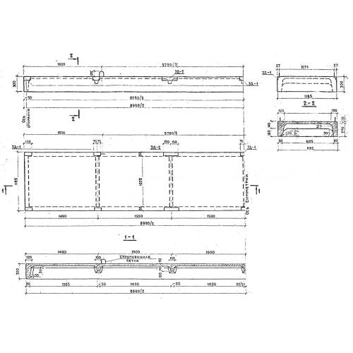
П-90 плита пешеходного мостика

Чертеж изделия:
Характеристики изделия:
ПараметрЗначение
длина8980 мм
ширина1185 мм
высота300 мм
масса2320 кг
нормативный документСерия 3.820-13

П-90  Плиты пешеходных мостиков по Серии 3.820-13.