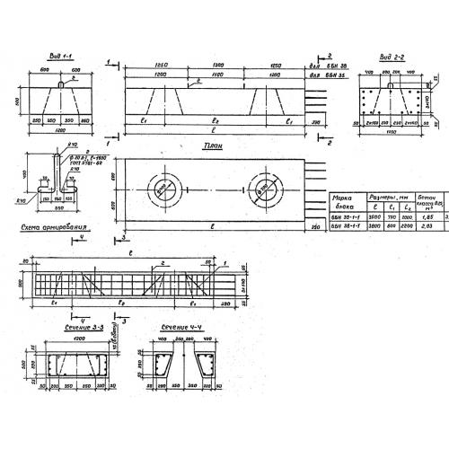
6БН 35
Характеристики изделия:
| Параметр | Значение |
|---|---|
| длина | 3500 мм |
| ширина | 1200 мм |
| высота | 500 мм |
| вес | 4630 кг |
| серия | 3.503.1-79 |
Цена:
Рассчитать стоимость6БН 35 Блоки насадок по серии 3.503.1-79.
| Параметр | Значение |
|---|---|
| длина | 3500 мм |
| ширина | 1200 мм |
| высота | 500 мм |
| вес | 4630 кг |
| серия | 3.503.1-79 |
6БН 35 Блоки насадок по серии 3.503.1-79.
