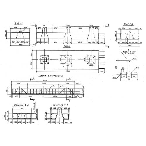
4БН 40

Чертеж изделия:
Характеристики изделия:
ПараметрЗначение
длина4000 мм
ширина1200 мм
высота400 мм
вес4330 кг
серия3.503.1-79

4БН 40  Блоки насадок  по серии 3.503.1-79.