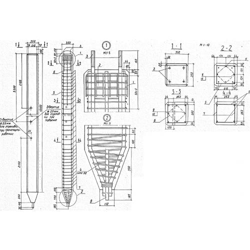
С 100-35

Чертеж изделия:
Характеристики изделия:
ПараметрЗначение
длина10000 мм
ширина350 мм
высота350 мм
вес3130 кг
серия3.501.1-149

С 100-35 Сваи по серии 3.501.1-149.