Ш 2

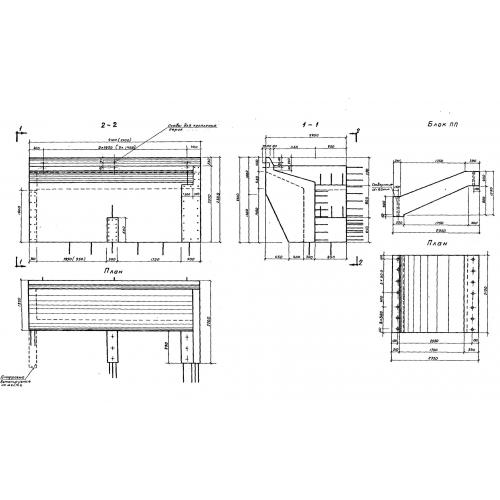
Чертеж изделия:
Характеристики изделия:
ПараметрЗначение
длина3700 мм
ширина2200 мм
высота2300 мм
вес11000 кг
серия3.501-61

Ш 2 Шкафные блоки по серии 3.501-61.