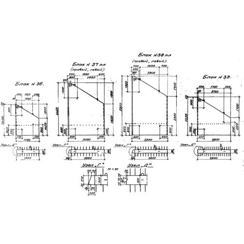
Блок №39

Чертеж изделия:
Характеристики изделия:
ПараметрЗначение
длина3250 мм
ширина2800 мм
высота300 мм
вес5100 кг
серия3.501-107

Блок №39 Откосные крылья по серии 3.501-107.