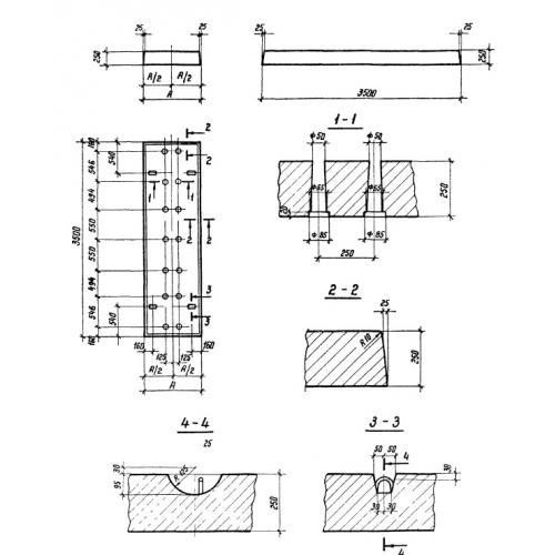
ПФ 35-10

Чертеж изделия:
Характеристики изделия:
ПараметрЗначение
длина3500 мм
ширина100 мм
высота250 мм
масса2190 кг
нормативный документСерия 3.407.1-148

ПФ 35-10  Плиты фундаментные Серия 3.407.1-148.