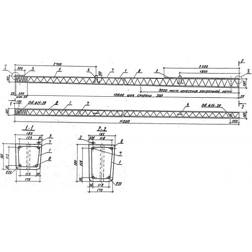
СВ 110

Чертеж изделия:
Характеристики изделия:
ПараметрЗначение
длина11000 мм
ширина185 мм
высота280 мм
масса1125 кг
нормативный документСерия 3.407.1-143

СВ 110  Стойки железобетонные Серия 3.407.1-143.