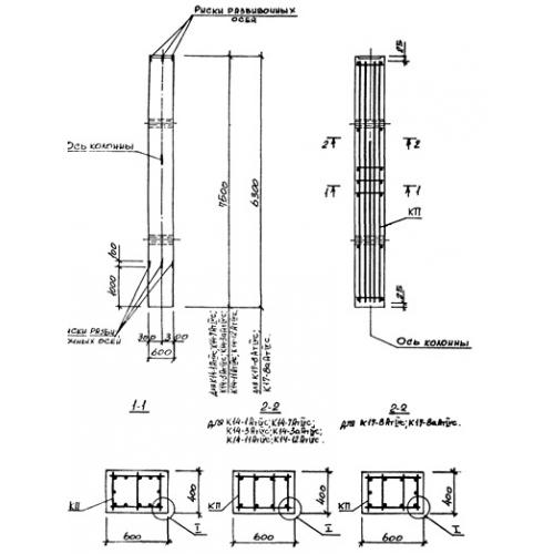
К 14

Чертеж изделия:
Характеристики изделия:
ПараметрЗначение
длина7500 мм
ширина600 мм
высота400 мм
масса4500 кг
нормативный документСерия 3.015-3/92

К 14  Колонны Серия 3.015-3/92.