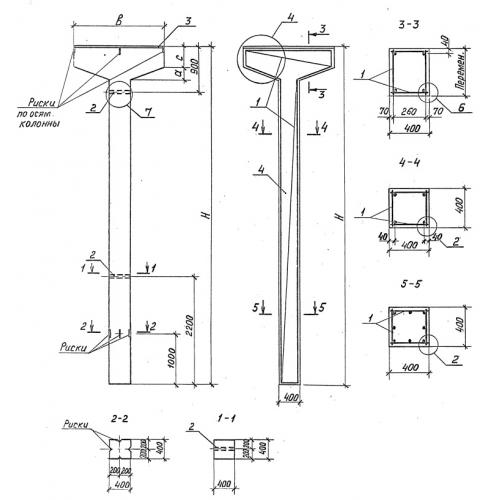
К 25 колонна сборная

Чертеж изделия:
Характеристики изделия:
ПараметрЗначение
длина7400 мм
ширина2400 мм
высота2400 мм
масса4000 кг
нормативный документСерия 3.015-1/92

К 25  Колонны сборные Серия 3.015-1/92.