БПС 1

Чертеж изделия:
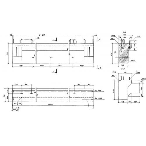
Характеристики изделия:
ПараметрЗначение
длина12200 мм
ширина700 мм
высота1050 мм
масса18000 кг
нормативный документСерия 3.014.1-2

БПС 1 Блоки Серия 3.014.1-2.