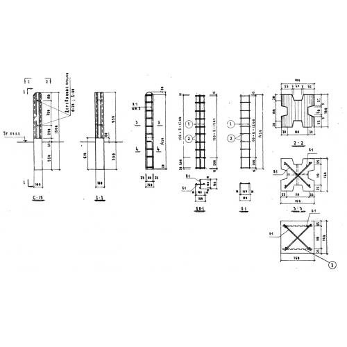
С-15

Чертеж изделия:
Характеристики изделия:
ПараметрЗначение
длина1500 мм
ширина160 мм
высота160 мм
вес95 кг
серия2.800-2

С-15 Стойки железобетонные с крестообразным поперечным сечением по серии 2.800-2.