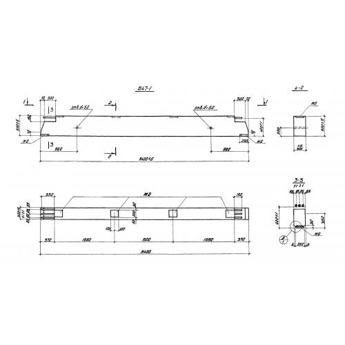
Б 47 ригели торцевые

Чертеж изделия:
Характеристики изделия:
ПараметрЗначение
длина5420 мм
ширина300 мм
высота500 мм
масса1980 кг
нормативный документСерия 1.420-12

Б 47  Ригели с полками для опирания плит  (однополочный ригель) Серия 1.420-12.