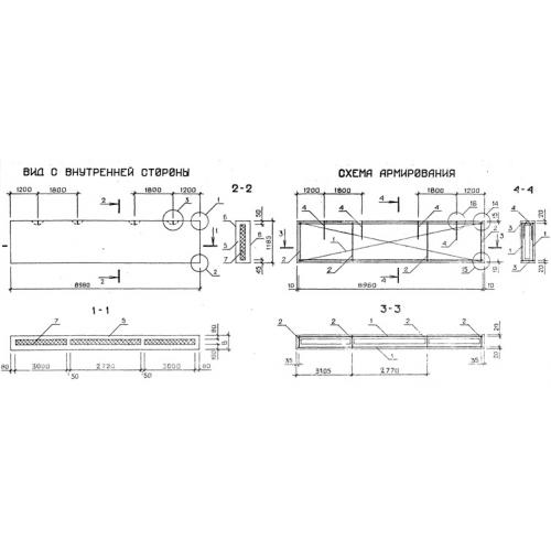
ПСТ 90.12.3.0 панели стеновые

Чертеж изделия:
Характеристики изделия:
ПараметрЗначение
длина8980 мм
ширина300 мм
высота1185 мм
масса4110 кг
нормативный документСерия 1.232.1-7

ПСТ 90.12.3.0  Панели стеновые трехслойные (рядовые) Серия 1.232.1-7.