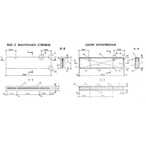
ПСТ 60.12.2.5 панели стеновые

Чертеж изделия:
Характеристики изделия:
ПараметрЗначение
длина5980 мм
ширина250 мм
высота1185 мм
масса2580 кг
нормативный документСерия 1.232.1-7

ПСТ 60.12.2.5  Панели стеновые трехслойные (рядовые) Серия 1.232.1-7.