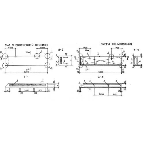
ПСТ 57.13.3.5 панели стеновые

Чертеж изделия:
Характеристики изделия:
ПараметрЗначение
длина5700 мм
ширина350 мм
высота1285 мм
масса2920 кг
нормативный  документСерия 1.232.1-7

ПСТ 57.13.3.5  Панели стеновые трехслойные (рядовые для внутренних углов зданий) Серия 1.232.1-7.