П 57.18.35
Характеристики изделия:
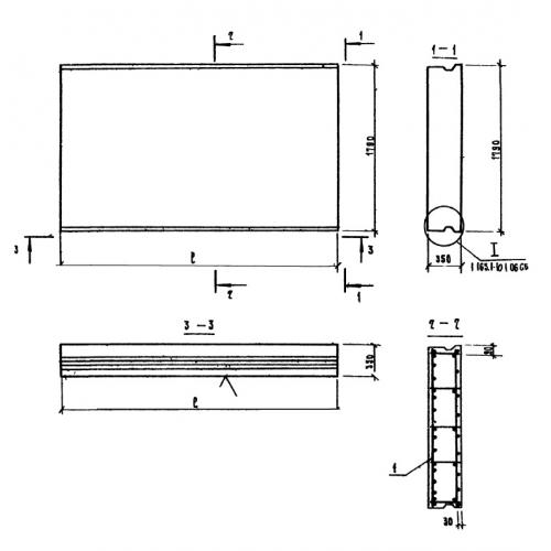
| Параметр | Значение |
|---|---|
| длина | 5670 мм |
| ширина | 1790 мм |
| высота | 350 мм |
| вес | 2620 кг |
| серия | 1.165.1-10 |
Цена:
Рассчитать стоимостьП 57.18.35 Панели покрытия по серии 1.165.1-10.
| Параметр | Значение |
|---|---|
| длина | 5670 мм |
| ширина | 1790 мм |
| высота | 350 мм |
| вес | 2620 кг |
| серия | 1.165.1-10 |
П 57.18.35 Панели покрытия по серии 1.165.1-10.
