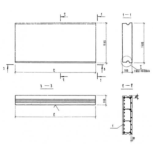
П 24.15.35

Чертеж изделия:
Характеристики изделия:
ПараметрЗначение
длина2370 мм
ширина1490 мм
высота350 мм
вес910 кг
серия1.165.1-10

П 24.15.35 Панели покрытия по серии 1.165.1-10.