П 57.15.22

Чертеж изделия:
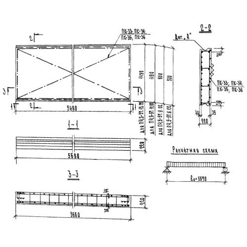
Характеристики изделия:
ПараметрЗначение
длина5680 мм
ширина1480 мм
высота220 мм
вес2320 кг
серия1.143-4

П 57.15.22 Панели перекрытия сплошные по серии 1.143-4.