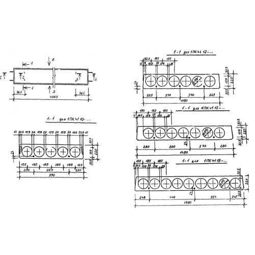
ПК 41.10

Чертеж изделия:
Характеристики изделия:
ПараметрЗначение
длина4060 мм
ширина990 мм
высота220 мм
вес1215 кг
серия1.141.1-31с

ПК 41.10 Плиты перекрытия многопустотные по серии 1.141.1-31с.