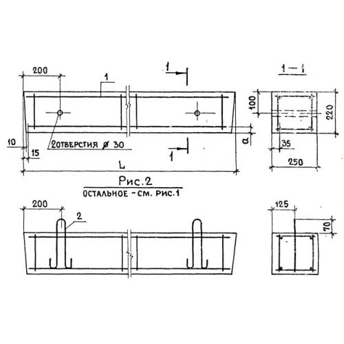
БУ 30
Характеристики изделия:
| Параметр | Значение |
|---|---|
| длина | 2980 мм |
| ширина | 250 мм |
| высота | 220 мм |
| вес | 410 кг |
| серия | 1.139-1 |
Цена:
Рассчитать стоимостьБУ 30 Перемычки брусковые усиленные по серии 1.139-1.
| Параметр | Значение |
|---|---|
| длина | 2980 мм |
| ширина | 250 мм |
| высота | 220 мм |
| вес | 410 кг |
| серия | 1.139-1 |
БУ 30 Перемычки брусковые усиленные по серии 1.139-1.
.jpg)