БУ 27
Характеристики изделия:
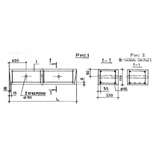
| Параметр | Значение |
|---|---|
| длина | 2700 мм |
| ширина | 250 мм |
| высота | 190 мм |
| вес | 320 кг |
| серия | 1.139-1 |
Цена:
Рассчитать стоимостьБУ 27 Перемычки брусковые усиленные по серии 1.139-1.
| Параметр | Значение |
|---|---|
| длина | 2700 мм |
| ширина | 250 мм |
| высота | 190 мм |
| вес | 320 кг |
| серия | 1.139-1 |
БУ 27 Перемычки брусковые усиленные по серии 1.139-1.
.jpg)