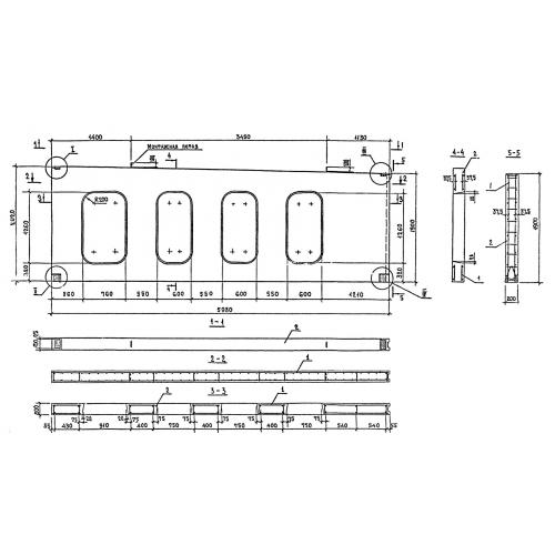
ВБЧ 60-20-20

Чертеж изделия:
Характеристики изделия:
ПараметрЗначение
длина5980 мм
ширина200 мм
высота2020 мм
вес4225 кг
серия1.134.1-16

ВБЧ 60-20-20 Внутренние блоки чердака по серии 1.134.1-16.