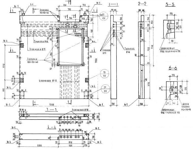
СБВЭ-25.2.30т-1п

Чертеж изделия:
Характеристики изделия:
ПараметрЗначение
Длина2500 мм
Ширина200 мм
Высота2980 мм
Масса3050 кг
Нормативный документСерия 1.134-1

Блоки внутренних  стен  по Серии 1.134-1.

СБВЭ-25.2.30т-1п   Стеновой блок внутренний электротехнический.