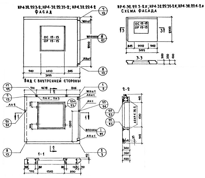
НР4-32.29.3-2

Чертеж изделия:
Характеристики изделия:
ПараметрЗначение
Длина3195 мм
Ширина300 мм
Высота2900 мм
Масса2920 кг
Нормативный документСерия 1.132-1

НР4-32.29.3-2   Наружная стеновая панель рядовая по Серии 1.132-1.