ЛСС 15
Характеристики изделия:
| Параметр | Значение |
|---|---|
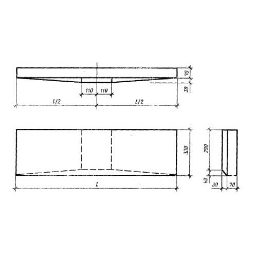
| длина | 1500 мм |
| ширина | 330 мм |
| высота | 100 мм |
| вес | 108 кг |
| серия | 1.055.1-1 |
Цена:
Рассчитать стоимостьЛСС 15 Ступени плоские для сквозных лестничных маршей по серии 1.055.1-1.
| Параметр | Значение |
|---|---|
| длина | 1500 мм |
| ширина | 330 мм |
| высота | 100 мм |
| вес | 108 кг |
| серия | 1.055.1-1 |
ЛСС 15 Ступени плоские для сквозных лестничных маршей по серии 1.055.1-1.
