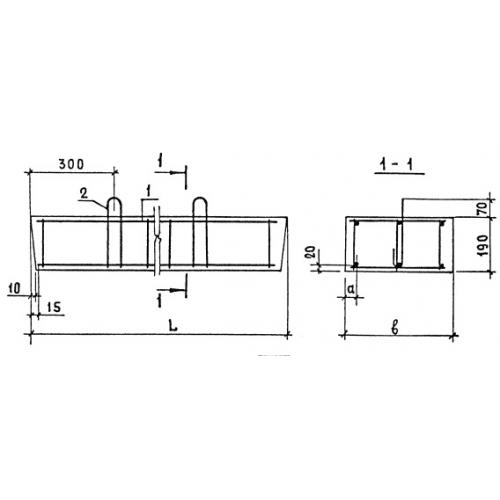
10ПП 23 перемычки плитные
Характеристики изделия:
| Параметр | Значение |
|---|---|
| длина | 2330 мм |
| ширина | 510 мм |
| высота | 190 мм |
| масса | 564 кг |
| нормативный документ | Серия 1.038.1-1 |
Цена:
Рассчитать стоимость10ПП 23 Железобетонные перемычки плитного типа Серия 1.038.1-1.
