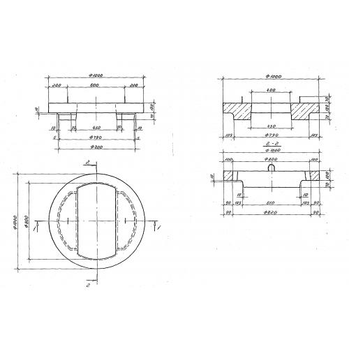
1ПП 8 плиты перекрытия колодцев

Чертеж изделия:
Характеристики изделия:
ПараметрЗначение
длина1000 мм
ширина1000 мм
высота170 мм
масса335 кг
нормативный документГОСТ 8020-90

1ПП 8  Плиты перекрытия для водоприемных колодцев ГОСТ 8020-90.