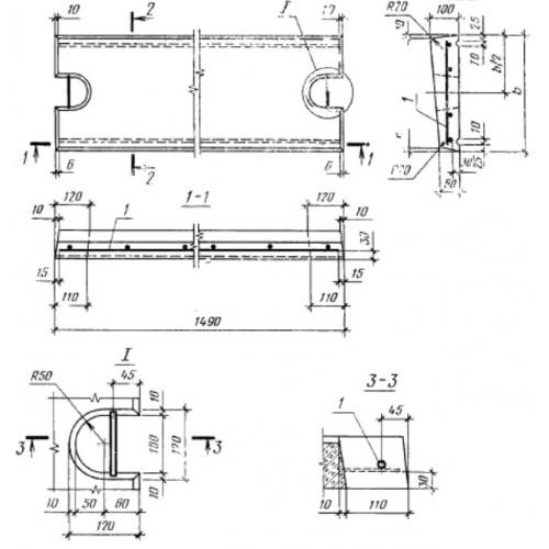
ПП 15.4 парапетные плиты

Чертеж изделия:
Характеристики изделия:
ПараметрЗначение
длина1490 мм
ширина400 мм
высота100 мм
масса96 кг
нормативный документГОСТ 6786-80

ПП 15.4  Плиты парапетные ГОСТ 6786-80.