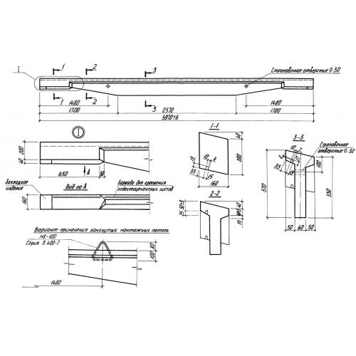
4ПР 1 н

Чертеж изделия:
Характеристики изделия:
ПараметрЗначение
длина5970 мм
ширина160 мм
высота370 мм
масса400 кг
нормативный документГОСТ 26992-86

ГОСТ 26992-86.

4ПР 1 н Прогоны без предварительного напряжения.

Марка прогона состоит из буквенно-цифровых групп, разделенных дефисами. Марки прогонов содержат следующие обозначения основных характеристик прогонов:

- первая группа - тип прогона;

- вторая группа - порядковый номер прогона по несущей способности, а также класс напрягаемой продольной арматуры для предварительно напряженных прогонов;

- третья группа - дополнительные характеристики, отражающие стойкость к воздействию агрессивной среды, характеризуемую показателем проницаемости бетона: Н - бетон нормальной проницаемости; П - бетон пониженной проницаемости. При наличии в прогонах дополнительных закладных изделий в третьей группе приводят их обозначения строчными буквами русского алфавита.

Прогоны подразделяют на типы: а) с полкой, перпендикулярной к ребру прогона:

- для зданий с уклоном кровли до 25 % включ.: 1ПР - с ненапрягаемой продольной арматурой, 2ПР - предварительно напряженные;

- для зданий с уклоном кровли до 5 % включ.: 3ПР - предварительно напряженные;

б) с косой полкой для зданий с уклоном кровли 25 % : 4ПР - с ненапрягаемой продольной арматурой, 5ПР - предварительно напряженные.